コンテンツへスキップ
現場事務所ナビ
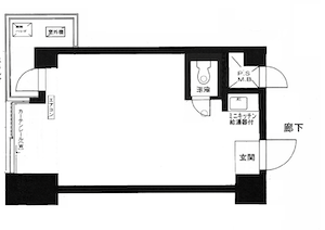
2025.10 N建設様 東京都千代田区
オフィスビル大規模修繕にあたり、近隣事務所をオーナーに短期利用の交渉をし、現場事務所としてご紹介。
投稿ナビゲーション
前
前の投稿:
2025.09 T建設様 東京都墨田区
次
次の投稿:
2025.10 M建設様 千葉県市川市