コンテンツへスキップ
現場事務所ナビ
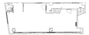
2025.09 S建設様 東京都文京区
マンション建設にあたり、近隣事務所をオーナーに短期利用の交渉をし、現場事務所としてご紹介。
投稿ナビゲーション
前
前の投稿:
2025.08 Z建設様 東京都大田区
次
次の投稿:
2025.09 T建設様 東京都文京区